Architecture

Architecture has been the cornerstone of my career, and I have had the privilege of serving as a lead designer from the very start. I consider myself fortunate that my passion aligns perfectly with my profession.

Over the past 20 years, I have had the opportunity to work with three esteemed firms: RTKL, DES, and DGA. These experiences have honed my natural talent into a refined skill set, allowing me to bring innovative and functional designs to life.

VETA COMPETITION WIN

OPEN COMPETITION WIN HOSTED BY ARCADIS - 2012

The Times Squared 3015 competition, organized by eVolo, challenges architects and designers to envision the future of New York City's Times Square a thousand years from now. This prestigious competition calls for innovative solutions that address key issues such as population growth, environmental sustainability, technological advancements, and urban resilience. Participants are encouraged to push the boundaries of conventional design and propose groundbreaking concepts for this iconic urban space.

My entry received an honorable mention for its exceptional design, recognized for its creativity, innovation, and potential to transform Times Square into a futuristic urban hub. The project incorporated advanced architectural concepts, sustainable design principles, and a visionary approach to urban planning, showcasing expertise and a forward-thinking mindset in the field of design.

YANGPYUNE

Seoul, South Korea

RTKL sent me to Seoul, South Korea, for eight weeks to lead the conceptual design of the Samsung Rehabilitation Hospital. The project deeply integrated the natural environment, with the site chosen for its therapeutic views of hills and forests. We explored multiple design concepts tailored to the specific needs of rehabilitation, focusing on maximizing natural light, ventilation, and views to enhance patient recovery.

Employing LEAN (IPD) principles, the design process was highly collaborative, involving close work with local architects and the client. The final design seamlessly blended the natural landscape with the hospital’s architecture, embodying a “Green, Light, and Human” concept that won the competition. The hospital’s south-facing wards, rooftop gardens, and interconnected indoor and outdoor spaces created a healing environment that harmonizes with the surrounding topography, setting a new standard for rehabilitation facilities.

RENDERING

BUILT PHOTOS

CONTAINER PROJECT

South San Francisco, CA

FIRM: DGA San Francisco

Role: Senior Project Designer - 2022
The Longfellow project involved converting one of twelve replica buildings into a high-end amenity space. This transformation aimed to host various functions, intending to bring a cluster of buildings one step closer to becoming a campus. The design included a variety of neutral, timeless, flexible, and inviting amenity features.

The space is designed with an emphasis on functionality and flexibility, featuring modern furnishings and thoughtful layouts that encourage interaction and collaboration. The use of glass walls and natural lighting creates an us.

TIMES SQUARE 3015, EVOLO

New York, NY

Role: Designer 2016

Lorem ipsum dolor sit amet, consectetur adipiscing elit. Phasellus ultricies magna metus, id mattis massa feugiat eget. Donec posuere ullamcorper cursus. Nam et molestie

KING OF PRUSSIA RETAIL

King of Prussia, PA

The King of Prussia Mall project was a design driven by diagrammatic forces that dictated the overall concept. One of the most exciting aspects of this project was connecting two large malls that previously had no indoor link. This solution required addressing multiple level discrepancies and creating a seamless flow between the retail spaces. Additionally, the harsh winters in Philadelphia presented an opportunity to design a small, living forest capable of thriving year-round and contributing to the environment by exchanging carbon dioxide with oxygen. The project's broad south face allowed for full sunlight, enhancing the indoor forest's sustainability.

The project involved complex coordination of different elevations to create smooth transitions between the existing structures. The design's integration of natural elements within a commercial setting not only improved the aesthetic appeal but also promoted environmental sustainability. These features, combined with thoughtful circulation planning and massing strategies, resulted in a cohesive and innovative solution that effectively connected the malls and enhanced the shopping experience.

The animated GIF above illustrates the thoughtful planning and integration of green spaces within the project, showcasing how the design harmoniously blends retail functionality with environmental consciousness. By balancing practical needs with creative solutions, the King of Prussia Mall renovation exemplified how commercial spaces can be reimagined to provide both functional connectivity and enriching environmental features.

The animation below demonstrates the layers and complexities of this design solution.

UTSW

FIRM: DGA San Francisco

Role: Senior Project Designer

The University of Texas Southwestern campus expansion project addressed various issues at both the hospital/clinical and campus levels. This project involved a thoroughly investigated design effort, challenging all decisions to understand the problem better than the client. This deep understanding allowed us to clearly explain the problem, process, and solutions while navigating design challenges. By solving interior programming and exterior skin challenges simultaneously, we coordinated sustainable strategies and internal programming seamlessly.

The design origins focused on several key factors. We prioritized spatial organization to ensure efficient use of space and solar orientation to maximize natural light. Building configuration and site integration were carefully planned to enhance functionality and cohesion with the existing campus. Wind assessment and view analysis were conducted to optimize comfort and aesthetics. Site mitigation strategies were implemented to address any potential issues, and expansion planning was meticulously carried out to accommodate future growth.

The beauty of this project was that it had almost no subjective design moves. It was entirely designed by internal and external forces resulting in both beauty and functional

LONGWAN RETAIL

Longwan, China

The Longwan project was assigned to our studio for reexamination and potential redesign. The proposals we generated were happily approved by the client. The design origins focused on several key factors. We incorporated passive heating and cooling strategies to enhance energy efficiency. Budget and cost distribution were carefully considered to ensure financial feasibility. Sectional studies were specifically designed to maximize solar usability through public concourses. Revit Ecotect solar skin studies were conducted to optimize the building’s interaction with sunlight. The geometries and forms were inspired by the client’s concept of the “lotus.” Additionally, the plan and spatial qualities were designed as multifunctional civic spaces, promoting versatility and community engagement.

CHENGDU TOWER

Longwan, China

This was my first tower project for the commercial group at RTKL. The building’s striking form and angular design were driven by the need to minimize the contact of the tower’s shadow cast on a neighboring 400-year-old temple. The base primarily consists of retail spaces, while the tower itself houses a mix of hotel and residential units. By integrating public areas, retail spaces, and accommodations, we created a dynamic environment within the high-rise. enhancing the city’s architectural identity.

ZANDU TOWERS

Zandu, China

The Zandu Towers project was a challenging and exciting endeavor, with multiple interpretations and viable concepts. The three towers fit on a two-parcel lot, integrating various amenity spaces and gardens. These designs combine functionality with aesthetic appeal, enhancing environmental sustainability and providing ample recreational green spaces. The project showcases the potential for high-density urban development to create vibrant, livable communities.

BIOMARIN DEDICATION WALL

Situated amidst the vibrant streets of San Francisco, our recent architectural endeavor encapsulates the essence of modern urban living through the transformation of a kitchen space. Inspired by the city's dynamic spirit and the client's refined tastes, our design narrative unfolds as a seamless fusion of aesthetic elegance and practical functionality.

With meticulous attention to detail, we reimagined the layout to optimize spatial efficiency and enhance the flow of daily life. The integration of sleek lines, premium materials, and innovative storage solutions culminates in a space that not only elevates the culinary experience but also serves as a hub for social engagement and creative expression. From intimate gatherings to culinary explorations, this redesigned kitchen embodies the essence of contemporary luxury, offering a harmonious blend of style, comfort, and convenience amidst the bustling backdrop of San Francisco's urban landscape.

3825 FABIAN WAY.

Mountain View, California

Firm: DGA
Role: Senior Project Designer 2020
Lorem ipsum dolor sit amet, consectetur adipiscing elit. Phasellus ultricies magna metus, id mattis massa feugiat eget. Donec posuere ullamcorper cursus. Nam et molestie erat. Donec ligula nisl, vulputate sed consectetur id, varius eget orci. Sed faucibus diam risus, eu mattis dui auctor vitae. In sit amet faucibus massa. In risus lectus, sagittis vitae iaculis at, pretium a turpis. Ut ullamcorper ex sit amet magna laoreet, lacinia facilisis neque laoreet.

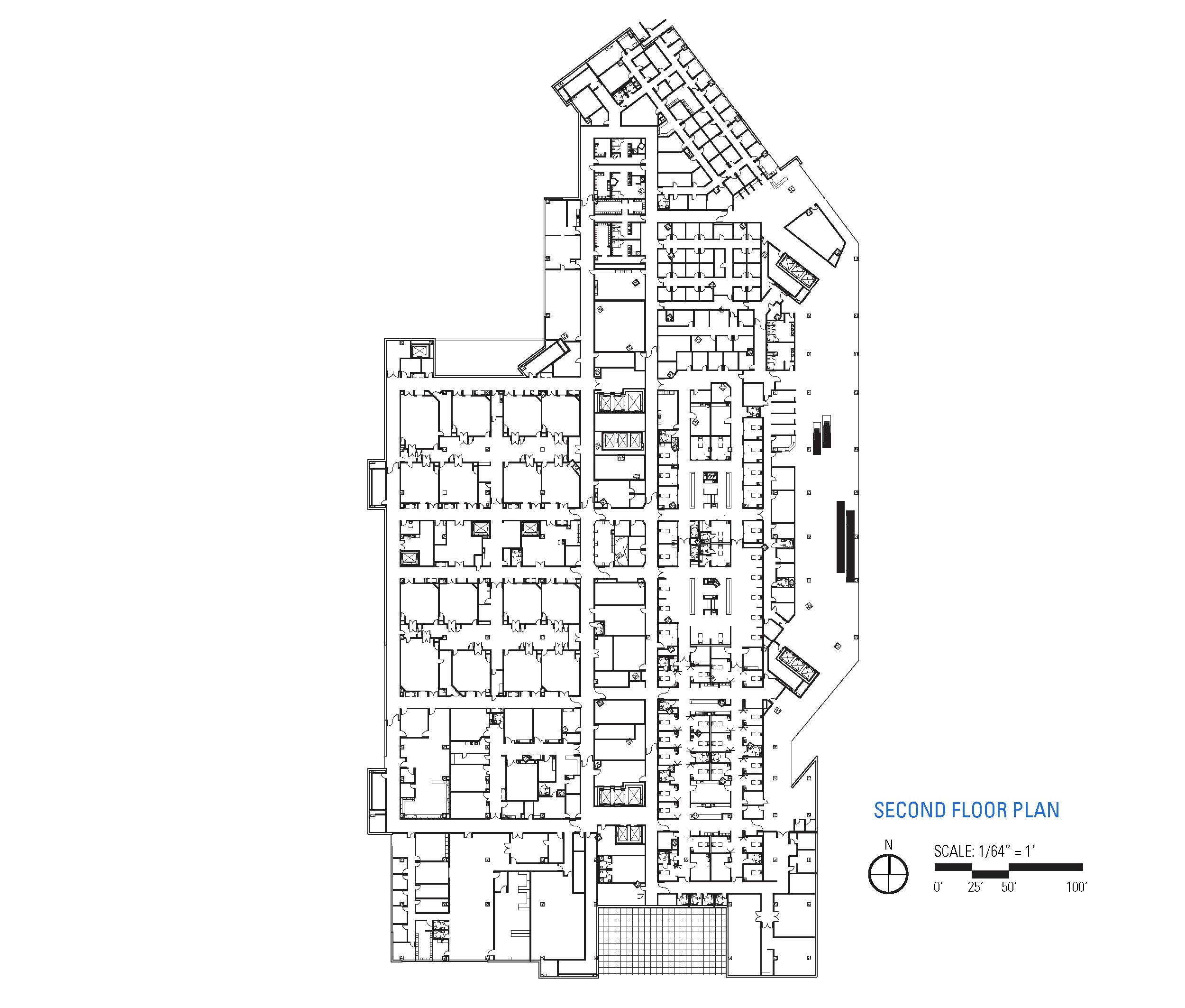
UCSF - HEALTH

FIRM: DGA MV

ROLE: Senior Project Designer

Situated amidst the vibrant streets of San Francisco, our recent architectural endeavor encapsulates the essence of modern urban living through the transformation of a kitchen space. Inspired by the city's dynamic spirit and the client's refined tastes, our design narrative unfolds as a seamless fusion of aesthetic elegance and practical functionality.

With meticulous attention to detail, we reimagined the layout to optimize spatial efficiency and enhance the flow of daily life. The integration of sleek lines, premium materials, and innovative storage solutions culminates in a space that not only elevates the culinary experience but also serves as a hub for social engagement and creative expression. From intimate gatherings to culinary explorations, this redesigned kitchen embodies the essence of contemporary luxury, offering a harmonious blend of style, comfort, and convenience amidst the bustling backdrop of San Francisco's urban landscape.

ABBOTT

VASCULAR HQ

Santa Clara, CA

FIRM: DGA San Francisco

Role: Senior Project Designer - 2022
Lorem ipsum dolor sit amet, consectetur adipiscing elit. Phasellus ultricies magna metus, id mattis massa feugiat eget. Donec posuere ullamcorper cursus. Nam et molestie erat. Donec ligula nisl, vulputate sed consectetur id, varius eget orci.

LOT 5 - tower study

San Francisco, CA

FIRM: DGA San Francisco

Role: Senior Project Designer - 2022
Lorem ipsum dolor sit amet, consectetur adipiscing elit. Phasellus ultricies magna metus, id mattis massa feugiat eget. Donec posuere ullamcorper cursus. Nam et molestie erat. Donec ligula nisl, vulputate sed consectetur id, varius eget orci.

Next
Next

INTERIORS